200多平別墅25天完工是什么體驗?安徽王總輕鋼別墅全過程揭秘!

       輕鋼別墅已經不再歐美日德等發達國家的專享了,經過十幾年的發展,它漸漸在我們中國扎根、發芽,如今開花結果!
       在保證質量不變的同時,造價從10年前的3000元/㎡降低到現在的1500元/㎡,如今,開始進入尋常百姓家!
200多平別墅25天完工是什么體驗?安徽王總輕鋼別墅全過程揭秘!(圖1)

        看似和我們普通的鄉村小別墅并無二致,但它除了基礎,沒有用一塊磚石,沒有用一點鋼筋混凝土!而且它的保溫隔熱、防水防潮乃至抗震性能比傳統房屋好的不止一星半點!在施工過程中,全裝配式的建造過程更是引得房主王先生全村人的駐足圍觀!
200多平別墅25天完工是什么體驗?安徽王總輕鋼別墅全過程揭秘!(圖2)
        這是原來的老房子,鄰居都已起高樓,因為不?;乩霞遥矐械脛?,但隨著父母年紀日長,作為子女在外面賺了錢,父母卻享受不到,實在不妥。剛好認識了一位做輕鋼自建房的朋友,經其介紹,也覺得輕鋼住宅比起傳統住宅獨樹一幟,就花了點錢,干了!一起去看看怎么施工的吧。

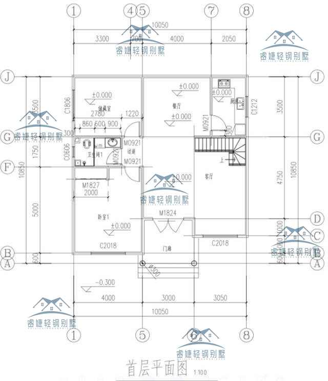
 1、圖紙設計
 
        蓋房子首先得有份滿意的圖紙,照著鄰居家做,實在沒什么意思,在睿婕官網上參考其中的一套戶型略作修改,做了這個設計。
200多平別墅25天完工是什么體驗?安徽王總輕鋼別墅全過程揭秘!(圖3)

200多平別墅25天完工是什么體驗?安徽王總輕鋼別墅全過程揭秘!(圖4)
      占地并不大,開間進深10x11m,2層大概220平,戶型方正還有挑空客廳,4室2廳2衛1廚,非常時尚現代的方案。住個三代同堂6口人完全沒有問題,這下,過年回家就可以住的舒舒服服了。

200多平別墅25天完工是什么體驗?安徽王總輕鋼別墅全過程揭秘!(圖5)
      因為輕鋼別墅施工專業性強,輕鋼龍骨的位置與連接都有嚴格的要求,所以我們要通過專業的軟件生成3D詳圖,能夠精確到每根龍骨的詳細尺寸。


2、基礎施工
 
      輕鋼別墅整體重量輕,僅有傳統磚混房屋的1/3左右,所以基礎也無需那么厚重,又因為是在老宅基地上,地基承載力足夠,只需要做好圈梁和大板基礎即可。

200多平別墅25天完工是什么體驗?安徽王總輕鋼別墅全過程揭秘!(圖6)

▲ 圈梁施工
       圈梁澆筑完成,整平地基,用小型夯實機振動壓實,并預埋給排水管線。

200多平別墅25天完工是什么體驗?安徽王總輕鋼別墅全過程揭秘!(圖7)

▲ 安裝給排水管線
       將廢棄的紅磚作為墊層,然后綁扎鋼筋澆筑混凝土,并震動密實。

200多平別墅25天完工是什么體驗?安徽王總輕鋼別墅全過程揭秘!(圖8)
▲ 澆筑整體大板基礎

200多平別墅25天完工是什么體驗?安徽王總輕鋼別墅全過程揭秘!(圖9)
▲ 大板基礎澆筑完成并整平

200多平別墅25天完工是什么體驗?安徽王總輕鋼別墅全過程揭秘!(圖10)


3、主體施工
 
       為方便運輸,所有輕鋼龍骨散運到施工現場后進行組裝。所有的輕鋼龍骨和OSB板(歐松板)只用了一輛車就拉完了!
200多平別墅25天完工是什么體驗?安徽王總輕鋼別墅全過程揭秘!(圖11)

▲ 輕鋼龍骨

200多平別墅25天完工是什么體驗?安徽王總輕鋼別墅全過程揭秘!(圖12)

▲ OSB板

200多平別墅25天完工是什么體驗?安徽王總輕鋼別墅全過程揭秘!(圖13)

▲ 小型構件組裝

200多平別墅25天完工是什么體驗?安徽王總輕鋼別墅全過程揭秘!(圖14)

▲ 樓板桁架組裝

200多平別墅25天完工是什么體驗?安徽王總輕鋼別墅全過程揭秘!(圖15)

▲ 墻體組裝
200多平別墅25天完工是什么體驗?安徽王總輕鋼別墅全過程揭秘!(圖16)
        一層構件組裝完成后開始放線安裝,首先根據放線安裝地邊梁龍骨。在地邊梁上每60cm一個的錨栓將其固定在鋼筋混凝土大板基礎上配上化學螺栓與混泥土融為一體,整體性更強,然后再通過角鋼、自攻自鉆釘和錨栓將墻體龍骨固定在底梁和基礎上。

200多平別墅25天完工是什么體驗?安徽王總輕鋼別墅全過程揭秘!(圖17)
▲ 底邊梁與基礎的錨固連接

200多平別墅25天完工是什么體驗?安徽王總輕鋼別墅全過程揭秘!(圖18)

▲ 墻體柱與底邊梁、基礎的固定連接

200多平別墅25天完工是什么體驗?安徽王總輕鋼別墅全過程揭秘!(圖19)
▲ 安裝墻體的過程中用水準儀找平

200多平別墅25天完工是什么體驗?安徽王總輕鋼別墅全過程揭秘!(圖20)

▲ 墻體安裝
200多平別墅25天完工是什么體驗?安徽王總輕鋼別墅全過程揭秘!(圖21)

▲ 樓板桁架安裝

200多平別墅25天完工是什么體驗?安徽王總輕鋼別墅全過程揭秘!(圖22)

▲ 二層墻體安裝

200多平別墅25天完工是什么體驗?安徽王總輕鋼別墅全過程揭秘!(圖23)

▲ 屋架安裝

200多平別墅25天完工是什么體驗?安徽王總輕鋼別墅全過程揭秘!(圖24)

▲ 主體輕鋼龍骨完成

 4、外墻、屋面施工
 
       這是內外墻的構造層示意圖,保溫隔熱、防水防潮、室內外裝修各個結構層井然有序,功能相互補充從而形成一個舒適、節能、能夠快速施工的整體,而這,就是裝配式的真意!

200多平別墅25天完工是什么體驗?安徽王總輕鋼別墅全過程揭秘!(圖25)
      主體施工完成后,先在樓板、屋面、外墻輕鋼龍骨上釘裝0SB結構板。結構板釘裝完成后,外墻上鋪貼呼吸紙防水層、錨固XPS保溫板、掛網抹灰、釘裝裝飾板,屋面鋪貼SBS防水層和瀝青瓦。
200多平別墅25天完工是什么體驗?安徽王總輕鋼別墅全過程揭秘!(圖26)
▲ 樓板和屋面OSB板釘裝
200多平別墅25天完工是什么體驗?安徽王總輕鋼別墅全過程揭秘!(圖27)
▲ 外墻OSB板釘裝

200多平別墅25天完工是什么體驗?安徽王總輕鋼別墅全過程揭秘!(圖28)
▲ 外墻呼吸紙鋪貼
200多平別墅25天完工是什么體驗?安徽王總輕鋼別墅全過程揭秘!(圖29)
▲ 屋面SBS防水層鋪貼
200多平別墅25天完工是什么體驗?安徽王總輕鋼別墅全過程揭秘!(圖30)
▲ 屋面SBS防水層和瀝青瓦鋪裝
200多平別墅25天完工是什么體驗?安徽王總輕鋼別墅全過程揭秘!(圖31)
▲ 外墻擠塑聚苯板錨固

200多平別墅25天完工是什么體驗?安徽王總輕鋼別墅全過程揭秘!(圖32)
▲ 外墻掛網抹灰

200多平別墅25天完工是什么體驗?安徽王總輕鋼別墅全過程揭秘!(圖33)
▲ 掛網抹灰完成
200多平別墅25天完工是什么體驗?安徽王總輕鋼別墅全過程揭秘!(圖34)

▲ 安裝門窗

200多平別墅25天完工是什么體驗?安徽王總輕鋼別墅全過程揭秘!(圖35)
▲ 做外墻真石漆

 5、室內裝修
 
      在輕鋼龍骨之間填充玻璃棉,然后釘裝石膏板,最后刷膩子涂料做內裝
200多平別墅25天完工是什么體驗?安徽王總輕鋼別墅全過程揭秘!(圖36)
▲ 墻體龍骨內填充玻璃棉
200多平別墅25天完工是什么體驗?安徽王總輕鋼別墅全過程揭秘!(圖37)
▲ 內墻釘裝石膏板
200多平別墅25天完工是什么體驗?安徽王總輕鋼別墅全過程揭秘!(圖38)
▲ 室內膩子涂料裝飾
200多平別墅25天完工是什么體驗?安徽王總輕鋼別墅全過程揭秘!(圖39)
▲衛生間瓷磚裝飾

6、毛坯+外裝造價
      不包括基礎,主體+外裝+水電+門窗,這棟220平的輕鋼別墅人工、材料費一共才不到30萬,和傳統的磚混房屋造價都相差無幾!
200多平別墅25天完工是什么體驗?安徽王總輕鋼別墅全過程揭秘!(圖40)

 7、優勢
 
        除了造價方面的大幅度降低,它施工速度快,整棟房屋的建造周期只有25天!對比于傳統房屋,它更加節能環保,良好的隔熱防潮性能不僅可以大大降低冬夏兩季的采暖、制冷費用,而且90%的建造材料都可以回收利用!抗震性強,它整體荷載低,輕鋼龍骨的柔性構造在地震襲來的瞬間更加穩定、安全。持久耐用,主體材料鍍鋅輕鋼龍骨有良好的耐腐、耐銹蝕性能,正常氣候條件下,使用壽命能達到70年!
200多平別墅25天完工是什么體驗?安徽王總輕鋼別墅全過程揭秘!(圖41)
      最后,這種裝配式輕鋼別墅不僅為廣大的年輕人所追捧,在新農村建設過程中也得到了國家建設部的大力支持!它有這么多的優點,價格卻不貴,如果在老家建一棟如此的新型別墅,那該多漲面子?如果你要建房,你選哪個?